BELCASTRO - MARTINIELLO | ARQUITECTOS  
    espacio MELO
ESCALADA - GBA

2024. Finalizado. Aprox. 1600m2

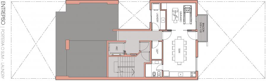
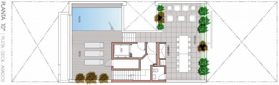
Este nuevo emprendimiento costa de 2 pisos de 4 amb. + 7 semipisos de 2 y 1/2 amb. al frente y 8 semipisos de 2 amb. al contrafrente , SUM, Laundry, 11 cocheras en PB y SS y 7 bauleras en SS. Desarrollado en SS/PB/EP y Nueve pisos de gran categoría, ascensor, Piscina y Asador en terrazas comunes.

Algunas características sonn: ambientes luminosos | carpinterías a medida linea Modena con vidrios DVH | amplios balcones | cocinas con muebles bajo mesada y alacena  |  mesadas de granito | artefactos sanitarios Ferrum  |  grifería FV | Agua caliente central con bombas recirculadoras | Preinstalacion para equipos de A°A° tipo split. | 

Copyright 2013-2025 ESPACIOS BM S.A. | Todos los derechos reservados | Espacios BM | Espacios BM WhatsApp Consultas
Planos de Casas . Arquitecto . Arquitectos . Arquitectura . Fachadas Modernas . Casas Minimalistas . Diseño interior . Interiorismo . Chalets modernos . Vivienda . viviendas . Planos . Casas . Casas planos . Proyectos de arquitectura. Aluminio. Asesor en carpinteria de aluminio. Arquitectos zona sur. Documentacion de obra. Obras. Arquitectura. Hoteleria. Edificios. Departamentos.