BELCASTRO - MARTINIELLO | ARQUITECTOS  
    espacio TOLL
Adrogue - GBA Sur

2017. Finalizado. Aprox.1100m2

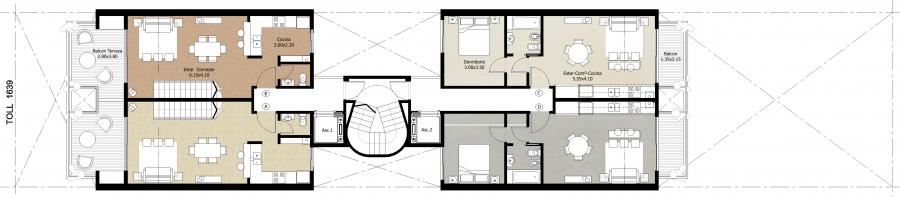
Se trata de un emprendimiento de 13 departamentos de 2 ambientes + 2 dúplex de 3 ambientes, desarrollado en PB (hall + 8 cocheras), cuatro pisos altos de gran categoría, terrazas exclusivas y dos ascensores que lo hacen único de su tipo en la zona, ubicado a metros de la plaza Brown de Adrogué.

 

Algunas características: ambientes luminosos | carpinterías a medida de excelente calidad  |   amplios balcones | muros y cielorrasos enlucidos en yeso  |   frentes de placard piso techo  |  cocinas equipadas con bajo mesada y alacena  |   mesadas de granito | calefacción por radiadores y caldera dual  |  artefactos sanitarios ferrum  |   grifería fv .

Copyright 2013-2025 ESPACIOS BM S.A. | Todos los derechos reservados | Espacios BM | Espacios BM WhatsApp Consultas
Planos de Casas . Arquitecto . Arquitectos . Arquitectura . Fachadas Modernas . Casas Minimalistas . Diseño interior . Interiorismo . Chalets modernos . Vivienda . viviendas . Planos . Casas . Casas planos . Proyectos de arquitectura. Aluminio. Asesor en carpinteria de aluminio. Arquitectos zona sur. Documentacion de obra. Obras. Arquitectura. Hoteleria. Edificios. Departamentos.