BELCASTRO - MARTINIELLO | ARQUITECTOS  
    espacio VIAMONTE
Banfield Este - LDZ - GBA Sur

2013. Obra Terminada. 400m2

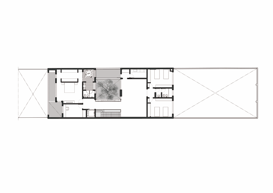
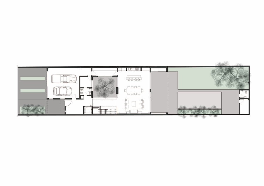
Una  casa de amplias dimensiones y con suntuosos de detalles. Propuesta clara en dos plantas, en donde el patio central organiza los generosos espacios, brindando calidez, iluminación y privacidad. La estética buscada es la de una volumetría simple entre medianeras y con presencia de materiales nobles modernos como piedra, aluminio y texturables. 

Cuenta con ascensor que llega a terraza con la idea de armar una plaza seca y solárium. En la parte posterior de PB, parrilla en galería, parque y piscina.

Copyright 2013-2025 ESPACIOS BM S.A. | Todos los derechos reservados | Espacios BM | Espacios BM WhatsApp Consultas
Planos de Casas . Arquitecto . Arquitectos . Arquitectura . Fachadas Modernas . Casas Minimalistas . Diseño interior . Interiorismo . Chalets modernos . Vivienda . viviendas . Planos . Casas . Casas planos . Proyectos de arquitectura. Aluminio. Asesor en carpinteria de aluminio. Arquitectos zona sur. Documentacion de obra. Obras. Arquitectura. Hoteleria. Edificios. Departamentos.